>
phone
info@finulent.com
phone
+1 860 880 1115
US UK
logo
US UK

Construction

Telecom Structure Design Services

Transforming complex connectivity needs into reliable, future-proof designs for the expanding telecom landscape

BESS Solutions

At Finulent Solutions, we deliver end-to-end telecom infrastructure design services that empower network providers with secure, scalable, and code-compliant solutions. Whether deploying new assets or upgrading legacy networks, our team ensures future-proof and regulation-ready telecom designs across residential, commercial, and industrial environments.

Tower & Mount Structural Analysis

Mount Analysis

We conduct rigorous structural assessments of mounting systems for antennas, radios, and telecom cabinets.

Key Parameters:
  • Load-bearing capacity, wind and seismic stability
  • Corrosion resistance and thermal durability
  • Tools: OpenTower, RISA-3D
Foundation Design

We design foundations that support both static and dynamic loads for telecom towers, poles, and cabinets.

Key Parameters:
  • Soil testing & bearing capacity assessment
  • Load simulations using STAAD2 Foundation
  • Design compliant with regional and international standard

Pole Structural Analysis

We perform pole strength assessments for telecom and utility poles, ensuring they can withstand environmental and equipment-induced loads.

Key Parameters:
  • Structural load capacity
  • Wind, rain, seismic forces
  • Software Used: RISA-3D

Architectural Drawings

Mount Mapping

Using GIS/CAD tools, we map optimal mount locations based on signal strength, accessibility, and interference avoidance.

SAP Calculations Illustration
Mount Equipment Layout

We design physical layouts for mounted telecom equipment, ensuring functionality, efficient cable routing, and ease of maintenance.

SAP Calculations Illustration

FTTx Network & Construction Design

We specialize in FTTH, FTTN, and FTTx network designs optimized for urban, suburban, and rural deployment.

Key Parameters:
  • Fiber routing, splicing, and drop cable layout
  • GIS-based network mapping and coordination with existing infrastructure
  • Cost estimation, rollout planning, and standards compliance (ITU, IEEE)
Software Stack:

ArcGIS, QGIS, AutoCAD, Vetro Fiber, Bentley Fiber, SketchUp, Civil 3D, AraMIs

Construction Drawings Include:
  • Cabinets, splice points, closures, drop cable routes
  • Handholes, manholes, and installation specs

Traffic Control Design & Permitting

We create ATSSA-certified Traffic Control Plans (TCPs) that meet DOT and NEC standards to ensure safe fiber deployment in public spaces.

Key Parameters:
  • Lane closure planning and pedestrian routing
  • Flagging setups and signage layout
  • Expedited permitting for minimal project delays

Photo Simulations

We offer high-fidelity photo simulations to visualize telecom infrastructure within actual environments for stakeholder and regulatory approvals.

SAP Calculations Illustration

Bill of Materials (BOM)

We generate detailed Bills of Materials for telecom projects using OpenBOM and TranZact, streamlining procurement, cost estimation, and inventory coordination.

Key Benefits:
  • Real-time collaboration across engineering and procurement teams
  • Fewer material errors, improved project transparency

As-Built Documentation

We prepare accurate as-built drawings post-installation to reflect final network configurations, cable routes, and equipment placement.

Key Parameters:
  • Supports future upgrades and maintenance
  • Helps validate construction against original plans

Small-Scale Drawings

We deliver precise small-scale layouts for new pole placements or pole replacements, including pole specs, mounting details, and associated cable paths.

Telecom Permit Plan Set

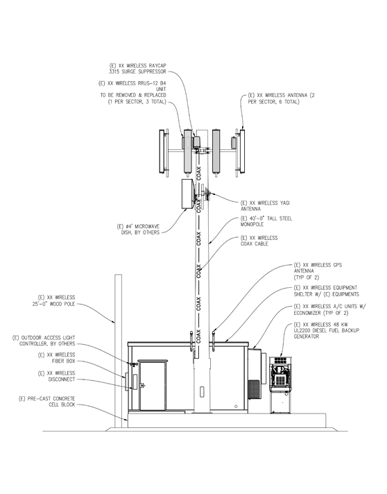
We produce complete construction-ready documentation for residential and commercial telecom projects.

Key Parameters:
  • Site, antenna, and equipment plans
  • Elevation drawings and one-line diagrams
  • Safety labels, signage, and datasheets

Generator Integration Drawings

We design generator layouts for telecom sites, detailing site placement, grounding, electrical schematics, and foundation specifics to ensure uninterrupted backup power.

PE Review for Telecom Towers

Our Professional Engineer (PE) review service ensures your towers are structurally sound and TIA-222 compliant.

Key Parameters:
  • Load analysis (wind, seismic, ice)
  • Foundation stability
  • Antenna mounts and intermodulation risk
  • OSHA-compliant fall protection and RF safety signage Tools Used: tnxTower, RISA Tower, STAAD Pro
Slide 1

The Finulent Advantage

Code-Compliant Designs

Aligned with NFPA, NEC, TIA-222, and OSHA standards

Certified Tools & Expert Resources

OpenTower, AutoCAD, ArcGIS, STAAD proficiency

End-to-End Project Support

From structural analysis to final approvals

Cross-Disciplinary Team

Civil engineers, GIS experts, telecom planners, and PEs under one roof

Where structural integrity meets engineering precision for dependable telecom networks
Frequently Asked Questions
What does Finulent include in its telecom structure design services?
Finulent telecom structure solutions are end-to-end solutions that range from tower and mount structural analysis to FTTH/FTTX network design, construction plans, permit expediting, vibration analysis, and BOM management.
How does Finulent maintain safety and compliance for tower and mount designs?
We employ cutting-edge software such as RISA-3D and STAAD Foundation to analyze structural strength under static, wind, and seismic load conditions, with full compliance with TIA-222, NEC, and local codes.
What telecom layout and documentation software tools are used by Finulent?
We use AutoCAD, Civil 3D, VETRO FiberMap, OSPInsight, AraMIs, ArcGIS and OpenBOM to create precise CAD drawings, fiber plans, BOMs, and permit-ready plan sets.
Do you offer as-built drawings for telecom installations?
Yes, we offer telecom as-built drawings services that record actual field installations, including all design variations, essential for maintenance and future expansion.
Can Finulent assist in fast-tracked telecom permit approvals?
Yes. Our telecom permit expediting services involve ATSSA-certified traffic plans, DOT-compliant plans, and full plan sets for quicker municipal approval with less back-and-forth.